设计专栏 | 悟空官网打造商场内年轻力运动空间,为商业赋能
项目名称:永盛超能运动空间
项目负责:司玉敏
主案设计:解丽屏
方案设计:小萌、张玉芳
施工图:杨国明
运营培训:金涛
【服务内容】
全案设计+工程总包+运营培训
【原始物业】

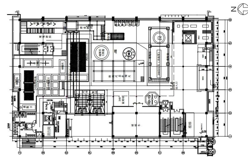
原始物业位于沈阳永盛购物中心六楼,层高7m,作为一家传统卖场,地段非常优越的同时又具有良好的物业情况非常少见。
【签约全案设计】



【主题风格】



悟空官网玩乐设计组大致把较为方正的空间划分成了三大块,分别是高空冒险区、电子竞技区和互动运动区。囊括了高空拓展、361自行车、滑梯组合、城市足球、城市篮球、蹦床、攀岩、梅花桩等近30个项目,是室内项目极为丰富新颖的综合性运动娱乐空间。




运动并非年轻人的专利,场馆积极响应全民运动热潮,也为中老年人开设了一系列老少皆宜的运动项目,射箭、射击、投球、棒球等。轻体育运动带动中老年人和运动新手改变对运动排斥的心理,尝试着从“小”做起,持之以恒,这样,在不知不觉中就能轻松完成一项锻炼。

利用场馆层高优势,我们在设置了一系列高空挑战项目满足年轻人追求刺激,勇于挑战的心理。得利于身处购物中心的优势,年轻人必然是这里的主力消费客群。又考虑到全家出来购物的可能性,为小朋友设置了超大的蹦床区域和益智类的高空拓展。


【项目施工】


诚然,永盛超能运动空间打破传统商业卖场模式,由业主方自己投资的模式,将运动和娱乐融合,主打年轻人解压经济 ,为整体商业卖场赋能,重新激活卖场人流量,在经济下行的当下,一定能在新一轮的地产商战中获得绝对的优势。
悟空官网体育作为轻体育引领者,以体育娱乐赋能商业,将会专注为更多商业体及文旅解决流量难题。
排版丨笑笑
文案丨笑笑
图片丨悟空官网拍摄
悟空·运动(WuKong Sport)体育官网

悟空·运动(WuKong Sport)体育官网,是一家具有开发到运营一站式服务的方案解决商,以“轻体育”为核心,整合多种娱乐科技,为消费者打造全龄段“流量空间”,服务内容有轻体育——运动乐园、家庭娱乐中心、户外冒险营地、城市运动综合体、综合运动馆等。





